價 格: 詢價
起訂量:≥1件
關鍵詞:
描 述:
系統特點:
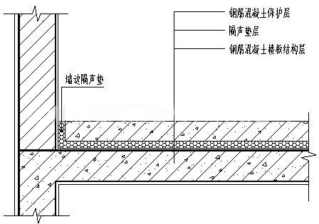
浮筑樓板隔振墊是專門針對***樓盤、別墅、星 級酒店開發的浮筑樓板隔音解決方案,由是一種***的復合隔音材料。具有空氣聲隔音與撞擊聲隔音之雙重功能,其空氣聲隔音效果和撞擊聲隔音效果均高于19分貝,是星 級酒店和***樓盤、別墅的樓板隔音解決方案。

A、厚度為10mm,計權規范化撞擊聲壓級改善量可達19分貝以上;
B、三層復合結構,高密度XPE面層即隔音又能防止施工過程中的意外破損;
C、材料本身具備出色的防水性能,并具備很好的抗壓強度、柔韌度及抗化學品性能;
D、很好的熱穩定性,可適用于-40~120℃環境,抗霉菌和真菌的生長;
IXPE/XPE交聯聚乙烯發泡材料是以低密度聚乙烯為主要原料,添加發泡劑AC等多種化工原料,經混合、加工,成形,用高能電子束進行輻照處理,或者在原料中添加過氧化物交聯劑,經交聯反應、再經發泡、定型、后處理等系列加工工藝生產出來的一種具有優異的物理機械性能、外觀漂亮、手感舒適、加熱工性好的***閉孔型泡沫材料。
IXPE/XPE交聯聚乙烯泡沫材料具有泡孔細密均勻、強韌、隔熱、隔音效果好、耐腐蝕性高、回彈性好、吸水性小、手感舒適等多種優異性能。可廣泛適用于汽車制造業、空調制冷業、包裝業、建筑、工程、農業、體育用品、娛樂及日常生活等領域。
應用范圍:
◆***樓盤、別墅、賓館、聲學試驗室、廣播室、KTV等民用住宅;
◆寫字樓/酒店/醫院/商業建筑/學校等公共***場所;
◆體育設施/工業廠房與設備的降噪處理;